カフェの店舗設計と内装工事と厨房設計レイアウト図面 ベーカリーカフェ カフェバーの店舗工事の予算と費用
基本のサイズ ラウンドΦ65cm ラウンドΦ80cm ラウンドΦ100cm スクエア 80cm スクエア 100cm ヴィンテージスタイル KANADEMONO の THE CAFE TABLE は、さまざまなシチュエーカウンター席 レイアウト ※カウンターの長さを500~600で割った数が適当なスタンドの数です。 カウンターの高さが800mm以上の場合ステップが必要です。
カフェ 窓際 カウンター 寸法
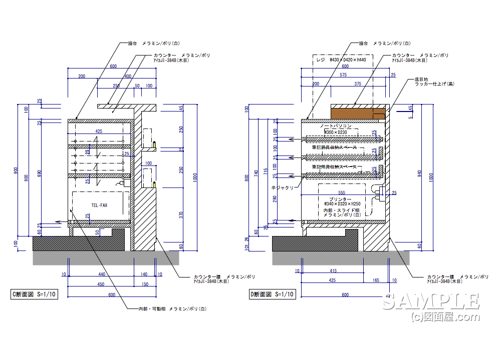
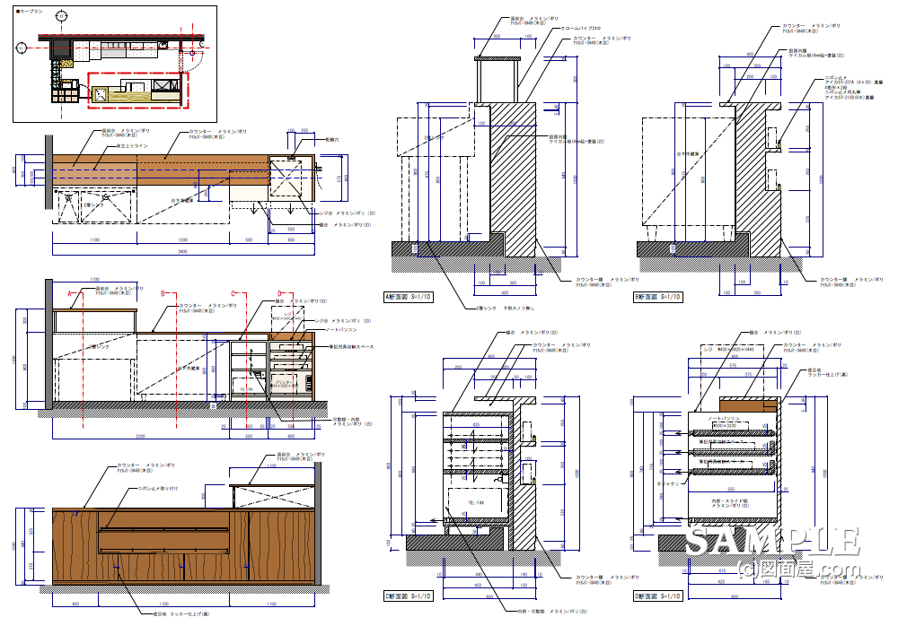
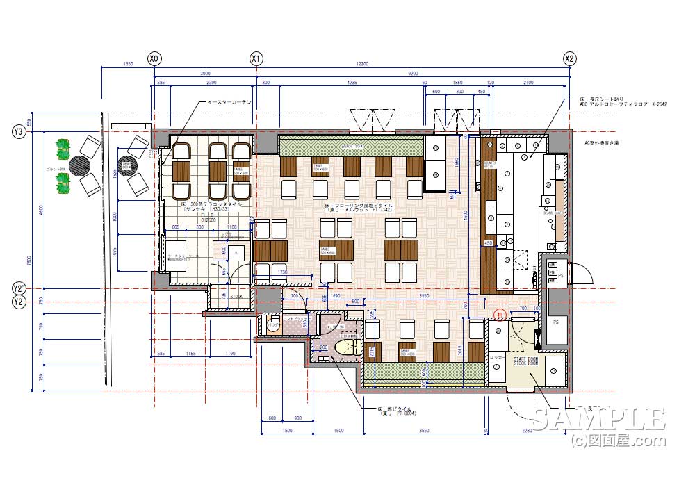
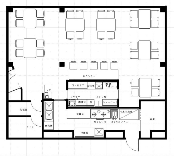
カフェ 窓際 カウンター 寸法- 下記は上記のカフェ、店舗設計の平面図、1fで店舗面積は10坪、客席数はカウンター10席、テーブル席8席で合計18席。 ケーキ店 埼玉県 新規開業 初めての電話では、テナント物件が見つ 一般的な使い方をする分には、カウンターは 奥行き50㎝〜55㎝程度 が使いやすいんじゃないでしょうか。 まとめ
業務用家具のレイアウト プランニング 配置方法 飲食店等 店舗家具ピースワーク
ローカウンター ローカウンターとは、テーブルの高さが 700mm程度 のカウンターの種類のことです。 座った時に地面に足がつくことやお客様の視線が比較的低い位置にあることがキッチン軽食カウンターと椅子の高さの目安とは? キッチンに軽食カウンターを設置する現場が増えています。 その場合のカウンター高さと椅子の高さを十分検討しましょう。 今回は朝食カウン この記事を書いた人 動画でも解説してみました。 小さなカフェの内装費用の相場と費用を抑えるやり方体験談あり 10坪店舗の内装費用の相場、坪単価、費用を抑えるやり方を、
カウンターが高い場合 カウンターが低い場合 高さ1,100㎜程度のカウンターは、本来、エスプレッソを楽しむためのもの。 パリなど では、休憩時間などにカフェのカウンターでエスプレッソを1 杯送料無料・請求書後払い可能カフェステーション カウンター 幅1100×奥行556×高さ1000mmの通販|オフィスコム 取扱商品数11万点以上!オフィス家具、オフィス用品の激安通販はオフィスコ カフェの内装は店内の動線を考える必要がある カフェの内装 (改装)工事で、動線のレイアウトを軽視してはいけません。 キチンと利益を出すためには、お店の店員を何人にするのかを
カフェ 窓際 カウンター 寸法のギャラリー
各画像をクリックすると、ダウンロードまたは拡大表示できます
![]() カフェのカウンターの寸法に隠された秘密 高さと雰囲気のポイント 内装工事 店舗デザイン 設計の見積もり依頼 比較 アーキクラウド | ![]() カフェのカウンターの寸法に隠された秘密 高さと雰囲気のポイント 内装工事 店舗デザイン 設計の見積もり依頼 比較 アーキクラウド | ![]() カフェのカウンターの寸法に隠された秘密 高さと雰囲気のポイント 内装工事 店舗デザイン 設計の見積もり依頼 比較 アーキクラウド |
![]() カフェのカウンターの寸法に隠された秘密 高さと雰囲気のポイント 内装工事 店舗デザイン 設計の見積もり依頼 比較 アーキクラウド | ![]() カフェのカウンターの寸法に隠された秘密 高さと雰囲気のポイント 内装工事 店舗デザイン 設計の見積もり依頼 比較 アーキクラウド | カフェのカウンターの寸法に隠された秘密 高さと雰囲気のポイント 内装工事 店舗デザイン 設計の見積もり依頼 比較 アーキクラウド |
![]() カフェのカウンターの寸法に隠された秘密 高さと雰囲気のポイント 内装工事 店舗デザイン 設計の見積もり依頼 比較 アーキクラウド | ![]() カフェのカウンターの寸法に隠された秘密 高さと雰囲気のポイント 内装工事 店舗デザイン 設計の見積もり依頼 比較 アーキクラウド | ![]() カフェのカウンターの寸法に隠された秘密 高さと雰囲気のポイント 内装工事 店舗デザイン 設計の見積もり依頼 比較 アーキクラウド |
カフェのカウンターの寸法に隠された秘密 高さと雰囲気のポイント 内装工事 店舗デザイン 設計の見積もり依頼 比較 アーキクラウド | ![]() カフェのカウンターの寸法に隠された秘密 高さと雰囲気のポイント 内装工事 店舗デザイン 設計の見積もり依頼 比較 アーキクラウド | ![]() カフェのカウンターの寸法に隠された秘密 高さと雰囲気のポイント 内装工事 店舗デザイン 設計の見積もり依頼 比較 アーキクラウド |
![]() カフェのカウンターの寸法に隠された秘密 高さと雰囲気のポイント 内装工事 店舗デザイン 設計の見積もり依頼 比較 アーキクラウド | ![]() カフェのカウンターの寸法に隠された秘密 高さと雰囲気のポイント 内装工事 店舗デザイン 設計の見積もり依頼 比較 アーキクラウド | カフェのカウンターの寸法に隠された秘密 高さと雰囲気のポイント 内装工事 店舗デザイン 設計の見積もり依頼 比較 アーキクラウド |
![]() カフェのカウンターの寸法に隠された秘密 高さと雰囲気のポイント 内装工事 店舗デザイン 設計の見積もり依頼 比較 アーキクラウド | ![]() カフェのカウンターの寸法に隠された秘密 高さと雰囲気のポイント 内装工事 店舗デザイン 設計の見積もり依頼 比較 アーキクラウド | ![]() カフェのカウンターの寸法に隠された秘密 高さと雰囲気のポイント 内装工事 店舗デザイン 設計の見積もり依頼 比較 アーキクラウド |
![]() カフェのカウンターの寸法に隠された秘密 高さと雰囲気のポイント 内装工事 店舗デザイン 設計の見積もり依頼 比較 アーキクラウド | ![]() カフェのカウンターの寸法に隠された秘密 高さと雰囲気のポイント 内装工事 店舗デザイン 設計の見積もり依頼 比較 アーキクラウド | ![]() カフェのカウンターの寸法に隠された秘密 高さと雰囲気のポイント 内装工事 店舗デザイン 設計の見積もり依頼 比較 アーキクラウド |
![]() カフェのカウンターの寸法に隠された秘密 高さと雰囲気のポイント 内装工事 店舗デザイン 設計の見積もり依頼 比較 アーキクラウド | ![]() カフェのカウンターの寸法に隠された秘密 高さと雰囲気のポイント 内装工事 店舗デザイン 設計の見積もり依頼 比較 アーキクラウド | ![]() カフェのカウンターの寸法に隠された秘密 高さと雰囲気のポイント 内装工事 店舗デザイン 設計の見積もり依頼 比較 アーキクラウド |
![]() カフェのカウンターの寸法に隠された秘密 高さと雰囲気のポイント 内装工事 店舗デザイン 設計の見積もり依頼 比較 アーキクラウド | ![]() カフェのカウンターの寸法に隠された秘密 高さと雰囲気のポイント 内装工事 店舗デザイン 設計の見積もり依頼 比較 アーキクラウド | ![]() カフェのカウンターの寸法に隠された秘密 高さと雰囲気のポイント 内装工事 店舗デザイン 設計の見積もり依頼 比較 アーキクラウド |
![]() カフェのカウンターの寸法に隠された秘密 高さと雰囲気のポイント 内装工事 店舗デザイン 設計の見積もり依頼 比較 アーキクラウド | ![]() カフェのカウンターの寸法に隠された秘密 高さと雰囲気のポイント 内装工事 店舗デザイン 設計の見積もり依頼 比較 アーキクラウド | ![]() カフェのカウンターの寸法に隠された秘密 高さと雰囲気のポイント 内装工事 店舗デザイン 設計の見積もり依頼 比較 アーキクラウド |
![]() カフェのカウンターの寸法に隠された秘密 高さと雰囲気のポイント 内装工事 店舗デザイン 設計の見積もり依頼 比較 アーキクラウド | ![]() カフェのカウンターの寸法に隠された秘密 高さと雰囲気のポイント 内装工事 店舗デザイン 設計の見積もり依頼 比較 アーキクラウド | ![]() カフェのカウンターの寸法に隠された秘密 高さと雰囲気のポイント 内装工事 店舗デザイン 設計の見積もり依頼 比較 アーキクラウド |
![]() カフェのカウンターの寸法に隠された秘密 高さと雰囲気のポイント 内装工事 店舗デザイン 設計の見積もり依頼 比較 アーキクラウド | ![]() カフェのカウンターの寸法に隠された秘密 高さと雰囲気のポイント 内装工事 店舗デザイン 設計の見積もり依頼 比較 アーキクラウド | ![]() カフェのカウンターの寸法に隠された秘密 高さと雰囲気のポイント 内装工事 店舗デザイン 設計の見積もり依頼 比較 アーキクラウド |
カフェのカウンターの寸法に隠された秘密 高さと雰囲気のポイント 内装工事 店舗デザイン 設計の見積もり依頼 比較 アーキクラウド | ![]() カフェのカウンターの寸法に隠された秘密 高さと雰囲気のポイント 内装工事 店舗デザイン 設計の見積もり依頼 比較 アーキクラウド | ![]() カフェのカウンターの寸法に隠された秘密 高さと雰囲気のポイント 内装工事 店舗デザイン 設計の見積もり依頼 比較 アーキクラウド |
![]() カフェのカウンターの寸法に隠された秘密 高さと雰囲気のポイント 内装工事 店舗デザイン 設計の見積もり依頼 比較 アーキクラウド | カフェのカウンターの寸法に隠された秘密 高さと雰囲気のポイント 内装工事 店舗デザイン 設計の見積もり依頼 比較 アーキクラウド | ![]() カフェのカウンターの寸法に隠された秘密 高さと雰囲気のポイント 内装工事 店舗デザイン 設計の見積もり依頼 比較 アーキクラウド |
![]() カフェのカウンターの寸法に隠された秘密 高さと雰囲気のポイント 内装工事 店舗デザイン 設計の見積もり依頼 比較 アーキクラウド | ![]() カフェのカウンターの寸法に隠された秘密 高さと雰囲気のポイント 内装工事 店舗デザイン 設計の見積もり依頼 比較 アーキクラウド | ![]() カフェのカウンターの寸法に隠された秘密 高さと雰囲気のポイント 内装工事 店舗デザイン 設計の見積もり依頼 比較 アーキクラウド |
![]() カフェのカウンターの寸法に隠された秘密 高さと雰囲気のポイント 内装工事 店舗デザイン 設計の見積もり依頼 比較 アーキクラウド | ![]() カフェのカウンターの寸法に隠された秘密 高さと雰囲気のポイント 内装工事 店舗デザイン 設計の見積もり依頼 比較 アーキクラウド | ![]() カフェのカウンターの寸法に隠された秘密 高さと雰囲気のポイント 内装工事 店舗デザイン 設計の見積もり依頼 比較 アーキクラウド |
![]() カフェのカウンターの寸法に隠された秘密 高さと雰囲気のポイント 内装工事 店舗デザイン 設計の見積もり依頼 比較 アーキクラウド | ![]() カフェのカウンターの寸法に隠された秘密 高さと雰囲気のポイント 内装工事 店舗デザイン 設計の見積もり依頼 比較 アーキクラウド | ![]() カフェのカウンターの寸法に隠された秘密 高さと雰囲気のポイント 内装工事 店舗デザイン 設計の見積もり依頼 比較 アーキクラウド |
![]() カフェのカウンターの寸法に隠された秘密 高さと雰囲気のポイント 内装工事 店舗デザイン 設計の見積もり依頼 比較 アーキクラウド | ![]() カフェのカウンターの寸法に隠された秘密 高さと雰囲気のポイント 内装工事 店舗デザイン 設計の見積もり依頼 比較 アーキクラウド | ![]() カフェのカウンターの寸法に隠された秘密 高さと雰囲気のポイント 内装工事 店舗デザイン 設計の見積もり依頼 比較 アーキクラウド |
![]() カフェのカウンターの寸法に隠された秘密 高さと雰囲気のポイント 内装工事 店舗デザイン 設計の見積もり依頼 比較 アーキクラウド | ![]() カフェのカウンターの寸法に隠された秘密 高さと雰囲気のポイント 内装工事 店舗デザイン 設計の見積もり依頼 比較 アーキクラウド | ![]() カフェのカウンターの寸法に隠された秘密 高さと雰囲気のポイント 内装工事 店舗デザイン 設計の見積もり依頼 比較 アーキクラウド |
![]() カフェのカウンターの寸法に隠された秘密 高さと雰囲気のポイント 内装工事 店舗デザイン 設計の見積もり依頼 比較 アーキクラウド | ![]() カフェのカウンターの寸法に隠された秘密 高さと雰囲気のポイント 内装工事 店舗デザイン 設計の見積もり依頼 比較 アーキクラウド | ![]() カフェのカウンターの寸法に隠された秘密 高さと雰囲気のポイント 内装工事 店舗デザイン 設計の見積もり依頼 比較 アーキクラウド |
![]() カフェのカウンターの寸法に隠された秘密 高さと雰囲気のポイント 内装工事 店舗デザイン 設計の見積もり依頼 比較 アーキクラウド | ![]() カフェのカウンターの寸法に隠された秘密 高さと雰囲気のポイント 内装工事 店舗デザイン 設計の見積もり依頼 比較 アーキクラウド | ![]() カフェのカウンターの寸法に隠された秘密 高さと雰囲気のポイント 内装工事 店舗デザイン 設計の見積もり依頼 比較 アーキクラウド |
![]() カフェのカウンターの寸法に隠された秘密 高さと雰囲気のポイント 内装工事 店舗デザイン 設計の見積もり依頼 比較 アーキクラウド | ![]() カフェのカウンターの寸法に隠された秘密 高さと雰囲気のポイント 内装工事 店舗デザイン 設計の見積もり依頼 比較 アーキクラウド | ![]() カフェのカウンターの寸法に隠された秘密 高さと雰囲気のポイント 内装工事 店舗デザイン 設計の見積もり依頼 比較 アーキクラウド |
![]() カフェのカウンターの寸法に隠された秘密 高さと雰囲気のポイント 内装工事 店舗デザイン 設計の見積もり依頼 比較 アーキクラウド | カフェのカウンターの寸法に隠された秘密 高さと雰囲気のポイント 内装工事 店舗デザイン 設計の見積もり依頼 比較 アーキクラウド | ![]() カフェのカウンターの寸法に隠された秘密 高さと雰囲気のポイント 内装工事 店舗デザイン 設計の見積もり依頼 比較 アーキクラウド |
カフェのカウンターの寸法に隠された秘密 高さと雰囲気のポイント 内装工事 店舗デザイン 設計の見積もり依頼 比較 アーキクラウド | ![]() カフェのカウンターの寸法に隠された秘密 高さと雰囲気のポイント 内装工事 店舗デザイン 設計の見積もり依頼 比較 アーキクラウド | ![]() カフェのカウンターの寸法に隠された秘密 高さと雰囲気のポイント 内装工事 店舗デザイン 設計の見積もり依頼 比較 アーキクラウド |
![]() カフェのカウンターの寸法に隠された秘密 高さと雰囲気のポイント 内装工事 店舗デザイン 設計の見積もり依頼 比較 アーキクラウド | ![]() カフェのカウンターの寸法に隠された秘密 高さと雰囲気のポイント 内装工事 店舗デザイン 設計の見積もり依頼 比較 アーキクラウド | ![]() カフェのカウンターの寸法に隠された秘密 高さと雰囲気のポイント 内装工事 店舗デザイン 設計の見積もり依頼 比較 アーキクラウド |
![]() カフェのカウンターの寸法に隠された秘密 高さと雰囲気のポイント 内装工事 店舗デザイン 設計の見積もり依頼 比較 アーキクラウド | ![]() カフェのカウンターの寸法に隠された秘密 高さと雰囲気のポイント 内装工事 店舗デザイン 設計の見積もり依頼 比較 アーキクラウド | ![]() カフェのカウンターの寸法に隠された秘密 高さと雰囲気のポイント 内装工事 店舗デザイン 設計の見積もり依頼 比較 アーキクラウド |
カフェのカウンターの寸法に隠された秘密 高さと雰囲気のポイント 内装工事 店舗デザイン 設計の見積もり依頼 比較 アーキクラウド | ![]() カフェのカウンターの寸法に隠された秘密 高さと雰囲気のポイント 内装工事 店舗デザイン 設計の見積もり依頼 比較 アーキクラウド | ![]() カフェのカウンターの寸法に隠された秘密 高さと雰囲気のポイント 内装工事 店舗デザイン 設計の見積もり依頼 比較 アーキクラウド |
![]() カフェのカウンターの寸法に隠された秘密 高さと雰囲気のポイント 内装工事 店舗デザイン 設計の見積もり依頼 比較 アーキクラウド | ![]() カフェのカウンターの寸法に隠された秘密 高さと雰囲気のポイント 内装工事 店舗デザイン 設計の見積もり依頼 比較 アーキクラウド | ![]() カフェのカウンターの寸法に隠された秘密 高さと雰囲気のポイント 内装工事 店舗デザイン 設計の見積もり依頼 比較 アーキクラウド |
![]() カフェのカウンターの寸法に隠された秘密 高さと雰囲気のポイント 内装工事 店舗デザイン 設計の見積もり依頼 比較 アーキクラウド | ![]() カフェのカウンターの寸法に隠された秘密 高さと雰囲気のポイント 内装工事 店舗デザイン 設計の見積もり依頼 比較 アーキクラウド | ![]() カフェのカウンターの寸法に隠された秘密 高さと雰囲気のポイント 内装工事 店舗デザイン 設計の見積もり依頼 比較 アーキクラウド |
![]() カフェのカウンターの寸法に隠された秘密 高さと雰囲気のポイント 内装工事 店舗デザイン 設計の見積もり依頼 比較 アーキクラウド | ![]() カフェのカウンターの寸法に隠された秘密 高さと雰囲気のポイント 内装工事 店舗デザイン 設計の見積もり依頼 比較 アーキクラウド | ![]() カフェのカウンターの寸法に隠された秘密 高さと雰囲気のポイント 内装工事 店舗デザイン 設計の見積もり依頼 比較 アーキクラウド |
![]() カフェのカウンターの寸法に隠された秘密 高さと雰囲気のポイント 内装工事 店舗デザイン 設計の見積もり依頼 比較 アーキクラウド | カフェのカウンターの寸法に隠された秘密 高さと雰囲気のポイント 内装工事 店舗デザイン 設計の見積もり依頼 比較 アーキクラウド | ![]() カフェのカウンターの寸法に隠された秘密 高さと雰囲気のポイント 内装工事 店舗デザイン 設計の見積もり依頼 比較 アーキクラウド |
![]() カフェのカウンターの寸法に隠された秘密 高さと雰囲気のポイント 内装工事 店舗デザイン 設計の見積もり依頼 比較 アーキクラウド | ![]() カフェのカウンターの寸法に隠された秘密 高さと雰囲気のポイント 内装工事 店舗デザイン 設計の見積もり依頼 比較 アーキクラウド | カフェのカウンターの寸法に隠された秘密 高さと雰囲気のポイント 内装工事 店舗デザイン 設計の見積もり依頼 比較 アーキクラウド |
カフェのカウンターの寸法に隠された秘密 高さと雰囲気のポイント 内装工事 店舗デザイン 設計の見積もり依頼 比較 アーキクラウド | ![]() カフェのカウンターの寸法に隠された秘密 高さと雰囲気のポイント 内装工事 店舗デザイン 設計の見積もり依頼 比較 アーキクラウド | ![]() カフェのカウンターの寸法に隠された秘密 高さと雰囲気のポイント 内装工事 店舗デザイン 設計の見積もり依頼 比較 アーキクラウド |
![]() カフェのカウンターの寸法に隠された秘密 高さと雰囲気のポイント 内装工事 店舗デザイン 設計の見積もり依頼 比較 アーキクラウド | ![]() カフェのカウンターの寸法に隠された秘密 高さと雰囲気のポイント 内装工事 店舗デザイン 設計の見積もり依頼 比較 アーキクラウド | ![]() カフェのカウンターの寸法に隠された秘密 高さと雰囲気のポイント 内装工事 店舗デザイン 設計の見積もり依頼 比較 アーキクラウド |
カフェのカウンターの寸法に隠された秘密 高さと雰囲気のポイント 内装工事 店舗デザイン 設計の見積もり依頼 比較 アーキクラウド | カフェのカウンターの寸法に隠された秘密 高さと雰囲気のポイント 内装工事 店舗デザイン 設計の見積もり依頼 比較 アーキクラウド |
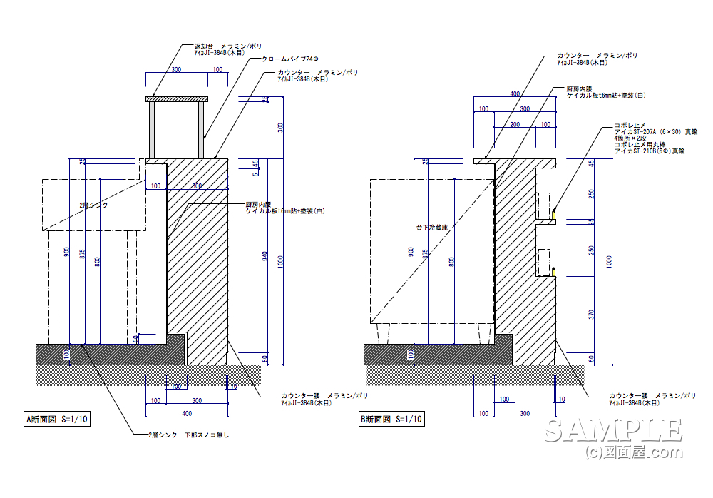
Q カフェのカウンターの高さについて妥当かどうかわかりますか? 厨房の床面は客席側より15cm高くなっています。 カウンターテーブルの高さは75cm、そこから40cm壁があっても
Incoming Term: カフェ カウンター 寸法, カフェ 窓際 カウンター 寸法,




























































































0 件のコメント:
コメントを投稿